Rotunda Westfalica
Studenten - Appartements Bielefeld - Dornberg
Erstbezug 1. Juli 2020
- Warmmiete ab 530 € (inkl. aller Nebenkosten, auch Strom)
- Ca. 27 m² Einzimmerwohnung
- 1.200 m zur Uni
- Fahrrad 6 min.
- Freibad gegenüber
- direkte Busanbindung
- 15 min bis in die Innenstadt
Die Lage
Großdornberger Straße 2, 33619 Bielefeld
Von der direkt am Haus gelegenen Bushaltestelle seid ihr 24 / 7 in 15 min. in der Innenstadt.
Zum Appartement
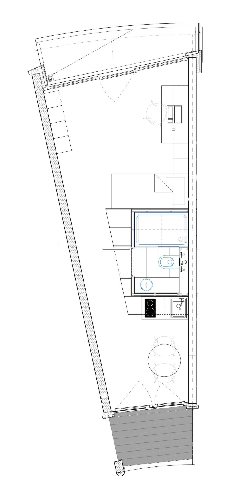
Du gehst vom Laubengang in Deine Studentenwohnung und bist sofort in der geräumigen Küche. Die Einbauküche ist ausgestattet mit diversen Schränken, Tische, Stühle, Kühlschrank, Mikrowelle, Glaskeramik Kochfeld und Spüle. Anschließend geht es vom Flur ins Badezimmer oder ins Wohn- und Arbeitszimmer.
Das moderne Bad ist mit begehbarer Dusche und großem Spiegel, WC und Handwaschbecken ausgestattet.
Der Wohn- und Arbeitsraum verfügt über ein:
- Queensize Bett (B 1.40 / L 2.00 m)
- Praktische Möbelboxen
- Schreibtisch, Stuhl, Vorhänge
Infotainment:
- Glasfaseranschluss
- WLAN Router (Vertrag mieterseitig)
- TV Satellitenanschluss

